House for elderly citizens, Warsaw Powiśle
bachelor thesis | September 2017
Warsaw University of Technology
Nowadays we observe a strong need to create different forms and types of housing siutable for new needs, of aging society but also rapidly growing scale of housing crisis in Poland. Increse in popularity of alternative forms of dwelling such as housing co-operatives and co-living facilities encourage the search for a type of residential building based on similar principles but dedicated to the elderly. The main premise of the project was to create space for senior citizens that thanks to it’s location, function and architecture, would remain active participants in urban life as long as possible.
Located in Warsaw’s Powisle district, an attractive, cameral and high-prestige neighborhood, where there are no egalitarian spaces for locals to meet. By combining the housing function with common spaces (such as : bar, daycare, library), the project responds both to the need for integration among the building residents, between generations and neighbors from around the block. The diversity of shared spaces fosters interpersonal relationships on many levels, and the differential building program allows its residents to develop their individual and group needs in a complex way. It answers growing needs of public in general in terms of the increased sense of connection with the nearest surroundings of their residence and the activation of local centers that we observe today in Warsaw.
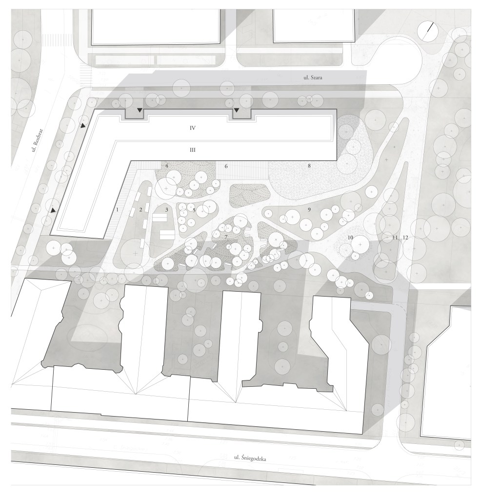
Location and urban situation:
The building has been located in one of the central districts of Warsaw, Powiśle, situated on the lower terrace of the Vistula basin. The close proximity of cultural institutions, and a large amount of green areas such as parks and green public squares, allows the elderly inhabitants to remain active participants of the city’s life. Location of the building in the central part of the city, in accordance with the principle of the municipality’s goal of increasing the density of the city centre, and at the same time in line with the desire to activate the building’s inhabitants within the framework of their familiar surroundings. The new building encloses the urban-block, creating an intimate garden in the back of the plot.


History and surroundings influence on the project:
The architecture of the building and some of its functions have been inspired by the surrounding context. The newly designed communal garden refers to a non longer existent orchard owned by the church that occupied before the war the opposite plot. The “jumps” of the facade are inspired by the tectonics of elevations of the building at Rozbrat 10/18 and Torwar housing estate, whilst the mosaic elements on the concrete prefabricates are a reference to ceramic artwork covering modernist pavilion named „ Sirens song”. The public spaces on the ground floor of the building, are a continuation of the typology observed on the street, wit many small shops, cafes and craft workshops.
Wide spectrum of private and public spaces :
In order to ensure that elderly people living in the home, establish various relationships from very close ( family-like) to neighbourly ( with residents of the surrounding buildings), a wide gradation of scale and availability of spaces of different characteristics was introduced. The building therefore has public, semi-public, semi private spaces – both outdoor and indoor. It stands in contrast to standard residential buildings, where in principle, private spaces are predominant and group space often boils down to corridors and vertical communication elements.
Due to the profile of the users, the public space inside the building has been designed in a way that makes its layout clear and simple. The ground floor was arranged as a sequence of spaces, grouped into two sections – the central one containing the service premises, which were surrounded by the spaces they serve. The central ‘core’ has been cut through with passages between the front and garden side of the building. Such an arrangement of continuous overlapping spaces allows users to stroll around the ground floor without any problems, referring to “wandering around” with no purpose as a form of recreation that we can observe among users on a city scale.
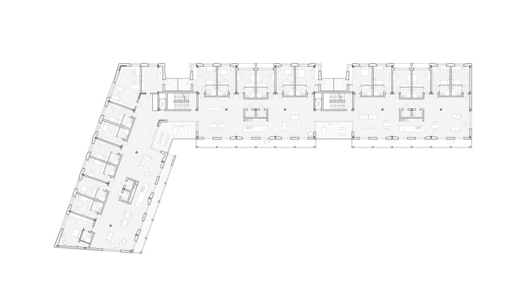
The residential floors have been arranged in a similar manner, with a lot of interconected spaces, but there is a clear division in between private rooms located on the sides of Rozbrat and Szara streets and group spaces opening onto the garden.
Different typologies of private rooms :
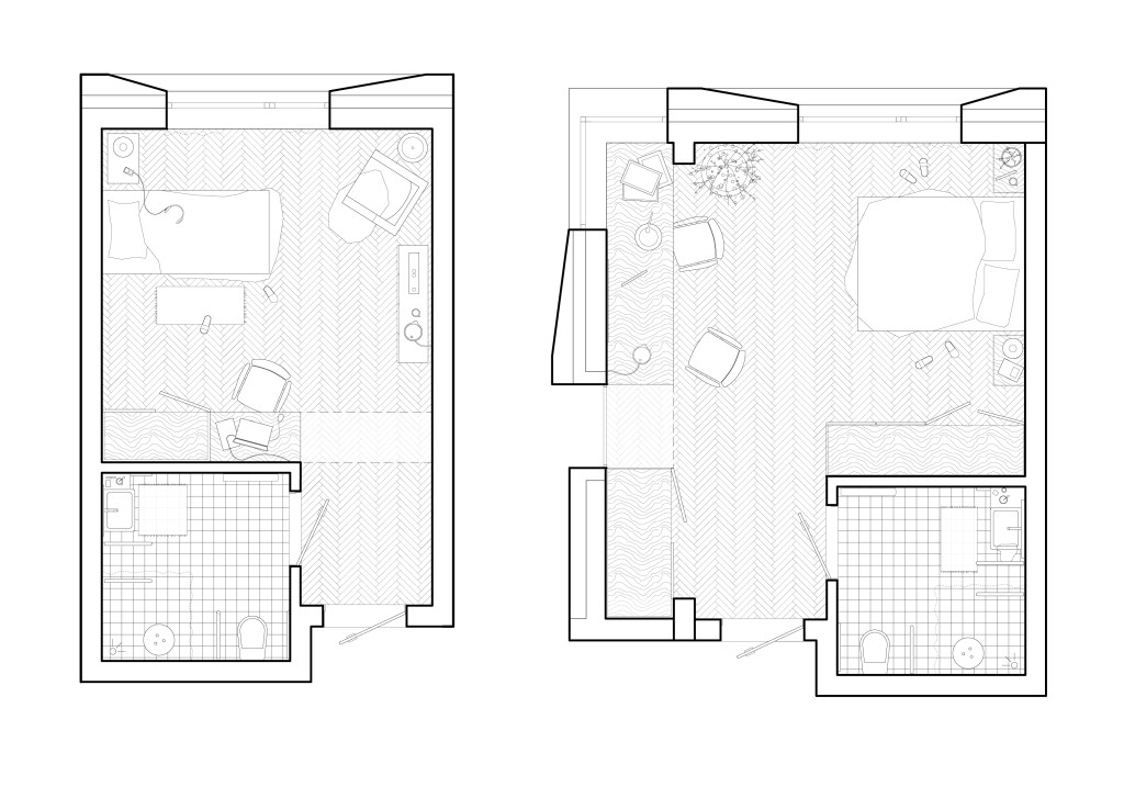
The basic unitd in the designed building are rooms, according to the previously described intention to minimize private space in order to increase the common use of space. There are 4 types of rooms: single room, single room with private loggia, double room with big private loggia and bigger double room with dressing room.
The individual rooms have been designed in such a way that way that if it would be neccesary two rooms can be combined into a two-room flat. The main element of interior, in each of the rooms is a large wooden wall unit. Depending on the user’s needs and arrangement, it can also serve as a desk or a bedside table. The room is standardly maintained in neutral colours, with wooden floors. Completed with the owner’s furniture and objects, it takes on individual character. Each room has one high window, with a lowered window sill so that you can watch the life of the street from your armchair or bed.
Bulding technology and materials :
The building was designed as a prefabricated structure, to limit the construction time and incersase the quailty of materials at the sime time also making the consturction process much more safe. The facade elements have been made from white concrete with small ornamentation inspired by the wall mosaic artwork from the 60s on one of the neighbouring builidngs, made out of glass and ceramic trash.
Decoration in the designed prefabricates relates to the very formula of the mosaic itseld but also to a specific idea of “recycling”.
The small colourful surface of the material used in its manufacture. The elements sunk in a manner similar to that of terrazzo, in concrete slabs are either glass or ceramic soft-shape “waste” or artificial “stones” made of plastic waste melted into one mass.














